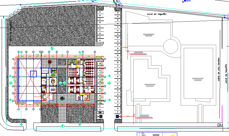
Corporate office building architecture layout plan details dwg file
Description
Corporate office building architecture layout plan details dwg file
Corporate office building architecture layout plan details that includes a detailed view of reception area, waiting area, conference room, meeting room, specified departments, head offices, toilets and bathrooms, offices, mini garden and much more of corporate office details.
File Type:
DWG
File Size:
1021 KB
Category::
Interior Design
Sub Category::
Corporate Office Interior
type:
Gold
Uploaded by:

