Detail of anchor architecture project dwg file
Description
Detail of anchor architecture project dwg file.
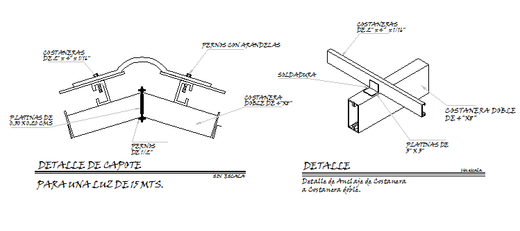
Detail of anchor architecture project that includes a detailed view of anchor detail from the Costanera to the double Costanera, detail of capote for a light, bolts, bolts with washers, welding and much more of anchor details.
Uploaded by:

