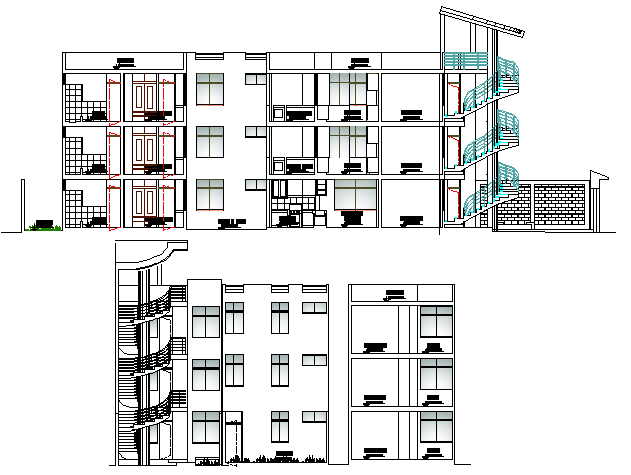
Multi-flooring residential building elevation and section details dwg file
Description
Multi-flooring residential building elevation and section details dwg file.
Multi-flooring residential building elevation and section that includes a detailed view of front elevation, sectional view, doors and window view, staircase view, tree view, car parking view, main entry gate, balcony view and much more of building project.
Uploaded by:
