Modern Municipality Center Design for High Performance Planning
Description
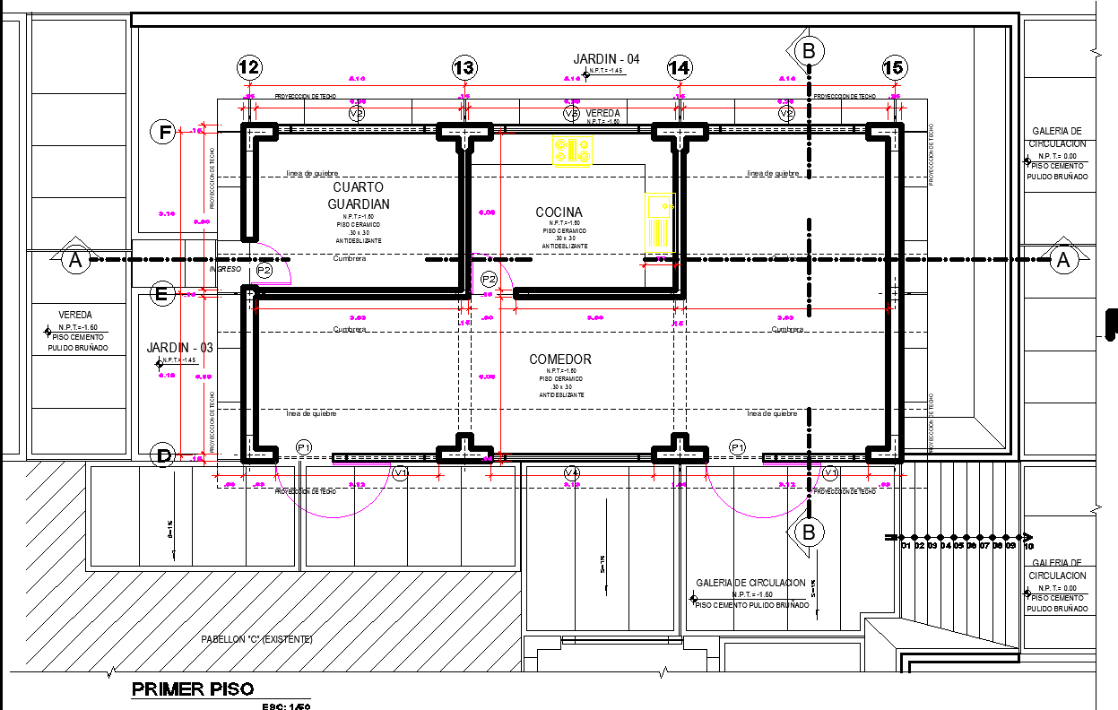
This municipality head center DWG file provides a comprehensive architectural layout designed to support administrative, public service, and local governance activities. The plan includes detailed room arrangements such as guardian rooms, kitchen areas, corridors, service zones, and access points, all drawn with accurate measurements. The drawing set also features structural details, including column grids, beam lines, stair positioning, and corridor connectivity for smooth circulation. Multiple sectional views illustrate vertical alignment, roof slope geometry, support framing, and interior spatial configuration. The elevations highlight façade composition with large window panels, door placements, protective coverings, and architectural elements that define the modern municipal style.
The DWG also includes sanitation tables, utility references, material symbols, and annotation details essential for construction planning. Roof plans show slab distribution, drainage points, and service access areas. Elevation drawings from the front, side, and rear provide a full visual understanding of the building’s exterior design. This file is ideal for architects, civil engineers, interior designers, and municipal project planners requiring precise references for public administration buildings. It supports design development, tender documentation, construction detailing, and efficient municipal facility planning.

Uploaded by:
john
kelly

