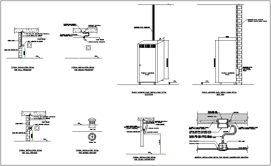
Wall projector,wall speaker & ceiling loud speaker installation view dwg file
Description
Wall projector,wall speaker and ceiling loud speaker installation view dwg file in detail of wall projector installation with wall view,back box and projector view,false ceiling view with audio cable and installation view of speaker and ceiling loud speaker.
Uploaded by:

