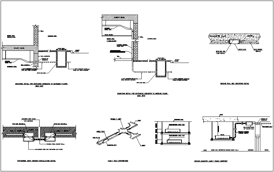
Mounting detail for entrance conduits and ceiling pull box detail dwg file
Description
Mounting detail for entrance conduits and ceiling pull box detail dwg file in side view
of entrance conduits mounting view with wall,ground level,concrete ceiling and hand
hall view with necessary detail and ceiling pull box mounting detail.
Uploaded by:

