Multi-flooring residential building side sectional view dwg file
Description
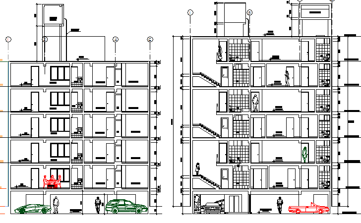
Multi-flooring residential building side sectional view dwg file.
Multi-flooring residential building side sectional view that includes a detailed view of floor view, basement car parking view, indoor staircase view, doors and windows view, balcony view, terrace view, dining area, toilets and much more of residential building details.
Uploaded by:

