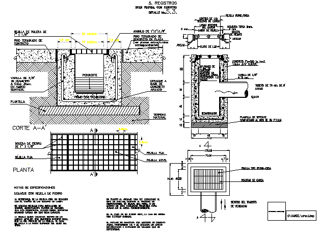
Rain rick with Irving type floor grid details dwg file
Description
Rain rick with Irving type floor grid details dwg file.
Rain rick with Irving type floor grid details that includes a detailed view of rain grid grill, fixed grid, mobile grid, ground, draining based on armed concrete, drain rain with registration, grill pf solar, finished concrete floor and much more of rain rick details.
Uploaded by:

