Heavy vehicle ramp bridge architecture project dwg file
Description
Heavy vehicle ramp bridge architecture project dwg file.
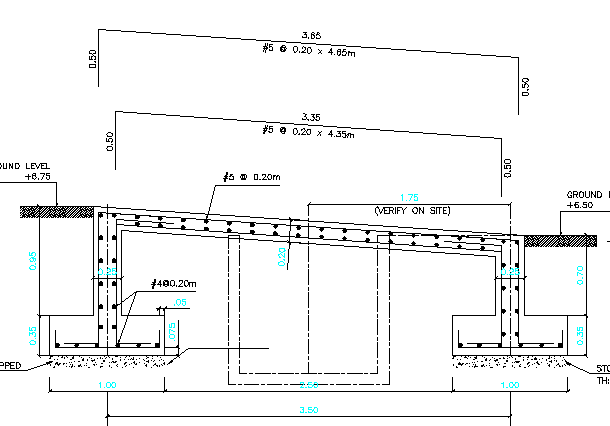
Heavy vehicle ramp bridge architecture project that includes a detailed view of bridge elevation with column view, beam view, slab view, railing view and much more of bridge details.
Uploaded by:

