Wall section detail with foundation details and floor divided naming all of the material, with dimension details
Description
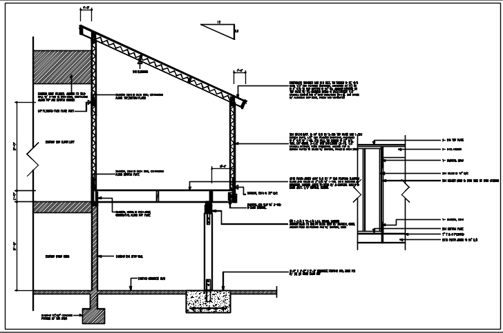
Wall section detail with foundation details and floor divided naming all of the material, with dimension details
Uploaded by:

