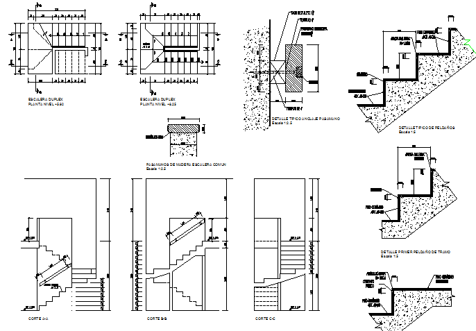
Staircase construction details of house dwg file
Description
Staircase construction details of house dwg file.
Staircase construction details of house that includes a detailed view of staircase construction with steps details, floor vise construction view, concrete base details, supportive column construction, railing supportive beam construction and much more of staircase construction details.
Uploaded by:

