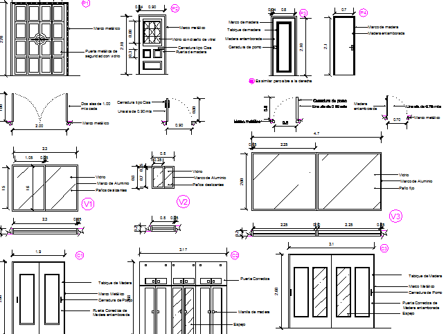
Door installation details of building dwg file
Description
Door installation details of building dwg file.
Door installation details of building that includes a detailed view of doors, door frame, wooden sheet, door design, joints, cuts, measures, supportive door column and beam view and much more of door installation details.
Uploaded by:

