Water tank of building constructive details dwg file
Description
Water tank of building constructive details dwg file.
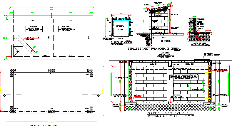
Water tank of building constructive details that includes a detailed view of pipe draining, floor construction, concrete base construction, slab construction, material used details, cut details, joints and much more of water tank construction details.
Uploaded by:

