Aluminium light pole installation details dwg file
Description
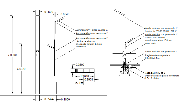
Aluminium light pole installation details dwg file.
Aluminium light pole installation details that includes a detailed view of cable fitting, earthing box, basement column for installation and much more of lighting pole details.
File Type:
DWG
File Size:
48 KB
Category::
Electrical
Sub Category::
Architecture Electrical Plans
type:
Gold
Uploaded by:

