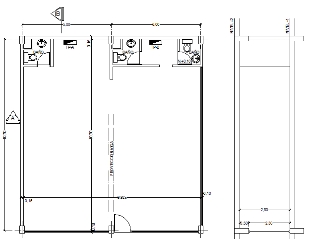
Sanitary installation details of commercial complex dwg file
Description
Sanitary installation details of commercial complex dwg file.
Sanitary installation details of commercial complex door and ventilation, toilet sheet installation, wall design, sink installation, flush tank details, floor design and much more of sanitary installation details.
Uploaded by:
