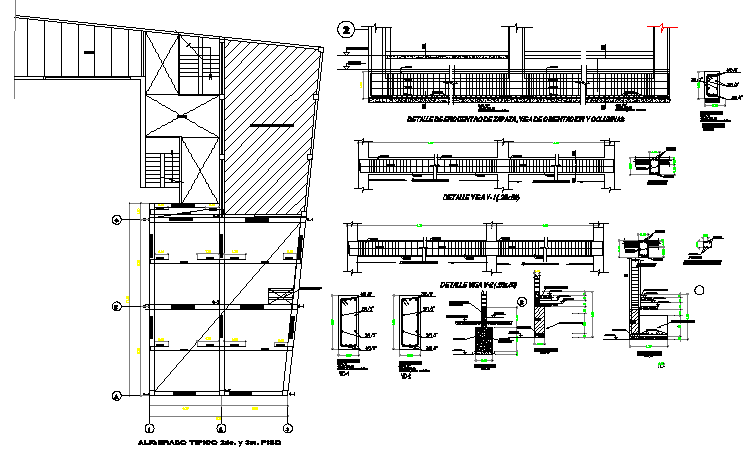
Foundation plan with column and beam of corporate office dwg file
Description
Foundation plan with column and beam of corporate office dwg file.
Foundation plan with column and beam of corporate office that includes a detailed view of column construction, beam construction, slab construction, concrete plan, staircase construction, pillar construction and much more of foundation plan details.
Uploaded by:
