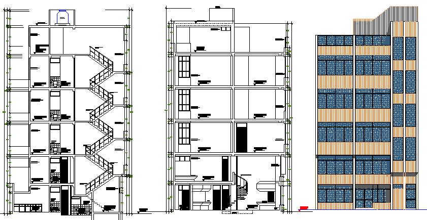
Elevation and sectional details of multi-flooring office building dwg file
Description
Elevation and sectional details of multi-flooring office building dwg file.
Elevation and sectional details of multi-flooring office building that includes a detailed view of main elevation, front section, back section, doors and windows view, staircase view, roof or terrace view, elevator view, offices, reception and much more of office building details.
Uploaded by:

