Four flooring office building floor plan layout plan dwg file
Description
Four flooring office building floor plan layout plan dwg file.
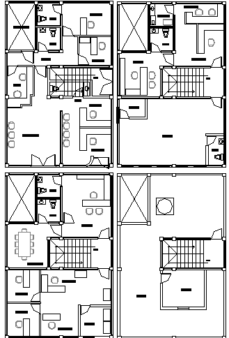
Four flooring office building floor plan layout plan that includes a detailed view of main entry door, reception area, inquiry desk, waiting room, employee office, head offices, conference room, meeting room, admin area, kitchen cafeteria with dining area, toilets and much more of office building floor plan details.
Uploaded by:
