Ground and first floor layout plan of corporate building dwg file
Description
Ground and first floor layout plan of corporate building dwg file.
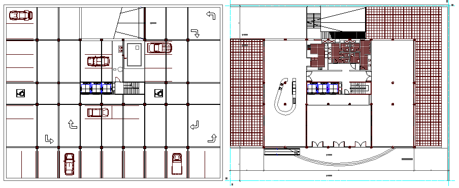
Ground and first floor layout plan of corporate building that includes a detailed view of basements car parking area with indoor roads, entry and exit gate, entry door, specialized departments, conference hall, reception area, waiting area, broad sitting area, passage, general hall, toilets, admin office and much more of floor plan details.
Uploaded by:

