Site plan details with landscaping of finance building dwg file
Description
Site plan details with landscaping of finance building dwg file.
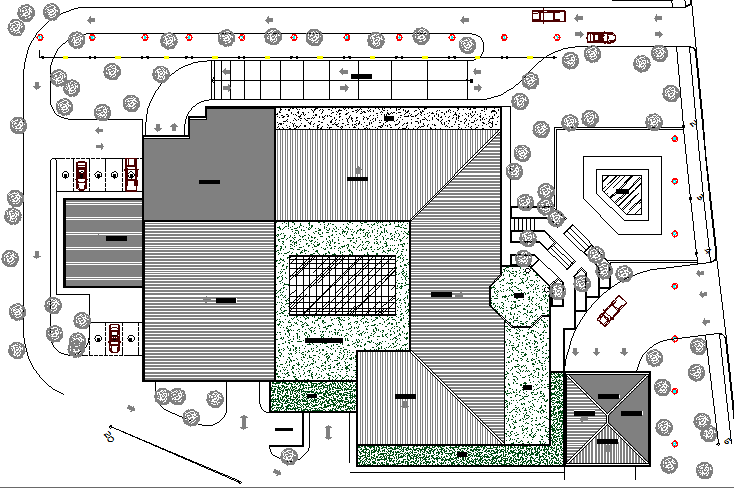
Site plan details with landscaping of finance building that includes a detailed view of indoor roads, outdoor roads, car parking area, two wheeler parking area, landmarks, garden area, tree view, plant view, future expansion area and much more of site plan details.
Uploaded by:

