Urbanized bank site plan with landscaping details dwg file
Description
Urbanized bank site plan with landscaping details dwg file.
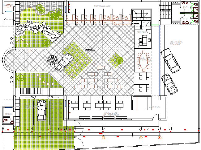
Urbanized bank site plan with landscaping details that includes a detailed view of car parking area, indoor roads, garden view, tree view, landscaping view, main entry gate, green area, reception, waiting area, general sitting hall, specialized departmental cabins and much more of bank details.
Uploaded by:

