Four flooring administration building section details dwg file
Description
Four flooring administration building section details dwg file.
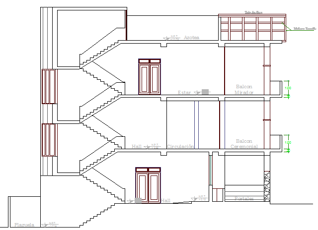
Four flooring administration building section details that includes a detailed view of front elevation, doors and windows view, flooring view, staircase view, wall design, terrace view, balcony and much more of building section details.
Uploaded by:

