All sided elevation details, multi-flooring administration building dwg file
Description
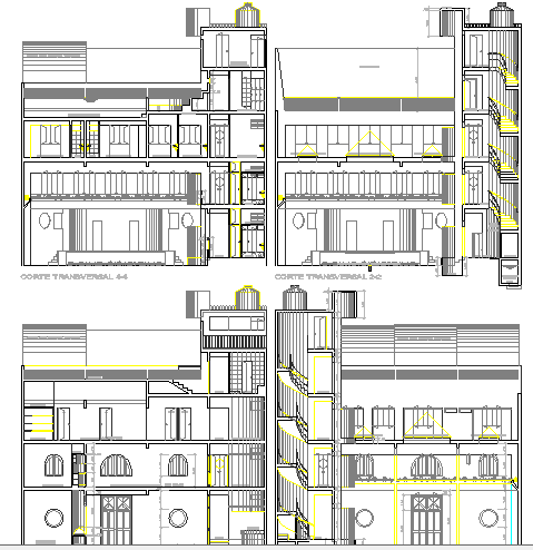
All sided elevation details of multi-flooring administration building dwg file.
All sided elevation details of multi-flooring administration building that includes a detailed view of front elevation, back elevation, side elevation, floor view, doors and windows view, staircase view, balcony view, roof view, dome view, wall design and much more of building details.
Uploaded by:
