Sanitary installation of all floors with structure details of office dwg file
Description
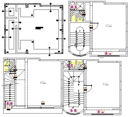
Sanitary installation of all floors with structure details of office dwg file.
Sanitary installation of all floors with structure details of office that includes a detailed view of male toilet, female toilet, toilet for handicapped, toilet sheet view, passage, doors, sink view, ventilation view, staircase view and much more of sanitary installation details.
Uploaded by:

