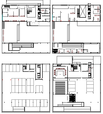
Ground, first, second and top floor layout plan of government council building dwg file
Description
Ground, first, second and top floor layout plan of government council building dwg file.
Ground, first, second and top floor layout plan of government council building that includes a detailed view of, indoor staircase view, main entry gate, reception area, waiting area, sitting area, general hall, meeting room, conference hall, head offices, employee offices and much more of floor plan details of building.
Uploaded by:

