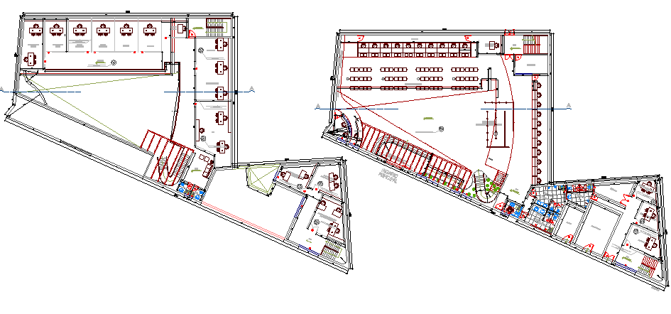
Ground and first floor plan layout plan of administration office dwg file
Description
Ground and first floor plan layout plan of administration office dwg file.
Ground and first floor plan layout plan of administration office that includes a detailed view of car parking view, garden area, main entry door, security gate, reception area, waiting area, sitting area, admin office, admin offices, toilets, specialized departments, conference hall, cultural hall and much more of admin office project.
Uploaded by:

