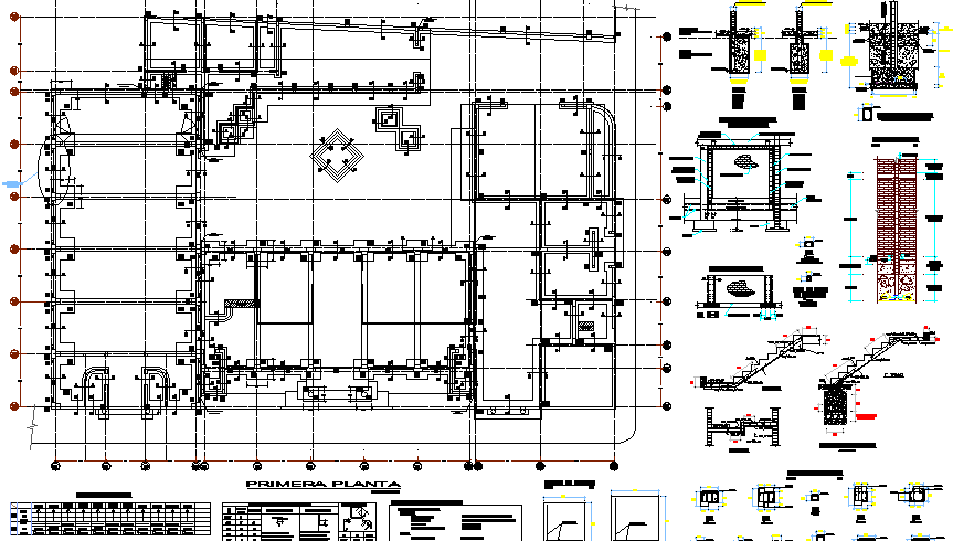
Staircase construction, foundation of column, beam details dwg file
Description
Staircase construction with foundation of column and beam details dwg file.
Staircase construction with foundation of column and beam details that includes a detailed view of floor construction, column construction, beam construction, steps details, concrete plan details, base floor construction details and much more of staircase construction details.
Uploaded by:
