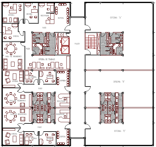
Administrative office building architecture layout plan details dwg file
Description
Administrative office building architecture layout plan details dwg file.
Administrative office building architecture layout plan details main entry gate, security desk, reception area, accountant desk, inquiry desk, sitting area, general hall, manager cabin, employee cabin, male toilet, female toilets, kitchen, dining area, meeting room, conference hall, employee offices and much more of office building layout.
Uploaded by:

