Sat-urbane center corporate office floor plan details dwg file
Description
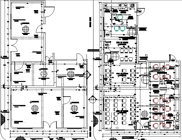
Sat-urbane center corporate office floor plan details dwg file .
Sat-urbane center corporate office floor plan details that includes a detailed view of main entry door, reception area, waiting area, employee offices, head offices, sitting area, general hall, admin office, control room, passage, male toilet, female toilets, kitchen, dining area, cafeteria, manager cabin, conference room, meeting room and much more of office floor plan detail.
File Type:
DWG
File Size:
569 KB
Category::
Interior Design
Sub Category::
Corporate Office Interior
type:
Gold
Uploaded by:

