All sided sectional view, municipal government building dwg file
Description
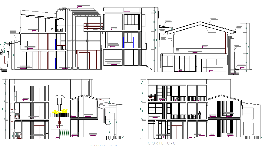
All sided sectional view details of municipal government building dwg file.
All sided sectional view details of municipal government building that includes a detailed view of front section, back section, side sections, doors and windows view, staircase view, balcony view, flooring view, terrace view, offices, toilets, reception area and much more of government building section details.
Uploaded by:
