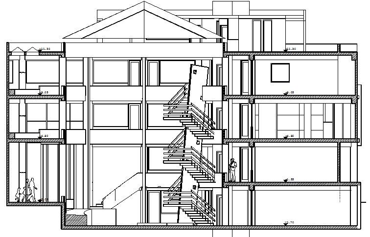
Front sectional view details of office building dwg file
Description
Front sectional view details of office building dwg file.
Front sectional view details of office building that includes a detailed view of front section with flooring view, doors and windows view, wall design, main entry gate, human blocks, indoor and outdoor staircase view and much more of building sectional view details.
Uploaded by:

