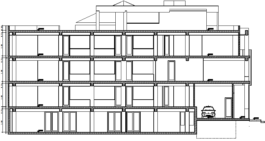
Front elevation view of municipal office building dwg file
Description
Front elevation view of municipal office building dwg file.
Front elevation view of municipal office building that includes a detailed view of flooring view, car parking view, doors and windows view, terrace view, column and beam design view, wall design and much more of office building elevation details.
Uploaded by:

