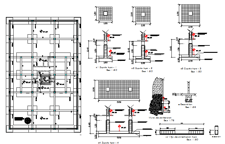
Constructive details with column and foundation of corporate office dwg file
Description
Constructive details with column and foundation of corporate office dwg file.
Constructive details with column and foundation of corporate office that includes a detailed view of beam construction, column construction view, material used details, concrete plan, material used details, cuts, joints and much more of beam construction details.
Uploaded by:

