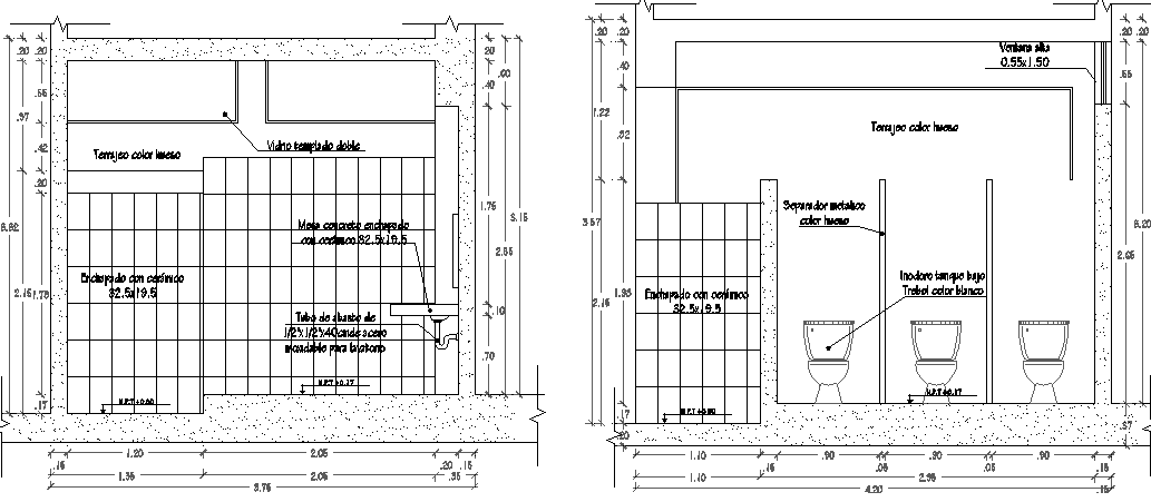
Multi-store bathroom for women of office dwg file
Description
Multi-store bathroom for women of office dwg file.
Multi-store bathroom for women of office that includes a detailed view of toilet sheet installation, sink installation, general hall, passage, ventilation, wall design and measurements and much more of sanitary installation details.
Uploaded by:

