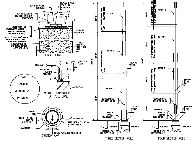
High mast pole lighting acacia installation details dwg file
Description
High mast pole lighting acacia installation details dwg file.
High mast pole lighting acacia installation details that includes a detailed view of aluminium pole details with measurement, footing construction, light installation, panel details, cable details, base floor construction, measures, joints and much more of lighting pole installation and constructive details.
File Type:
DWG
File Size:
1.3 MB
Category::
Electrical
Sub Category::
Architecture Electrical Plans
type:
Gold
Uploaded by:

