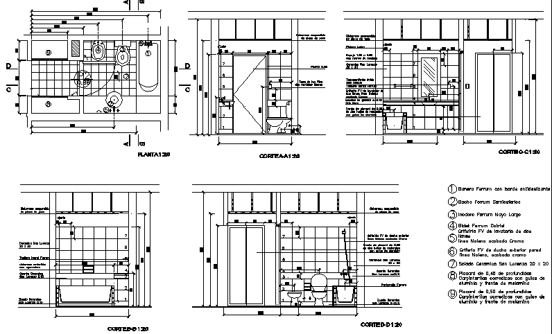
Toilet and bathroom installation details of one family house dwg file
Description
Toilet and bathroom installation details of one family house dwg file.
Toilet and bathroom installation details of one family house that includes a detailed view of cut sectional view of bathroom and toilets, toilet sheet installation, sink installation, general hall, passage, ventilation, doors, bathroom interior and much more of sanitary installation details.
Uploaded by:

