Irrigation channel gate detail concrete construction details dwg file
Description
Irrigation channel gate detail concrete construction details dwg file.
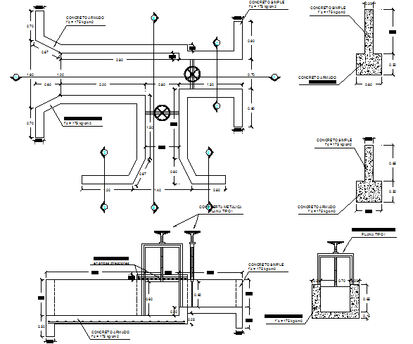
Irrigation channel gate detail concrete construction details manual excavation for floors and slopes, land compacted manually before emptying the floor, concrete for floor and wall, visible face forming, installation of the metal gate and much more of channel gate details.
Uploaded by:
