Inspection chambers drinking water constructive details dwg file
Description
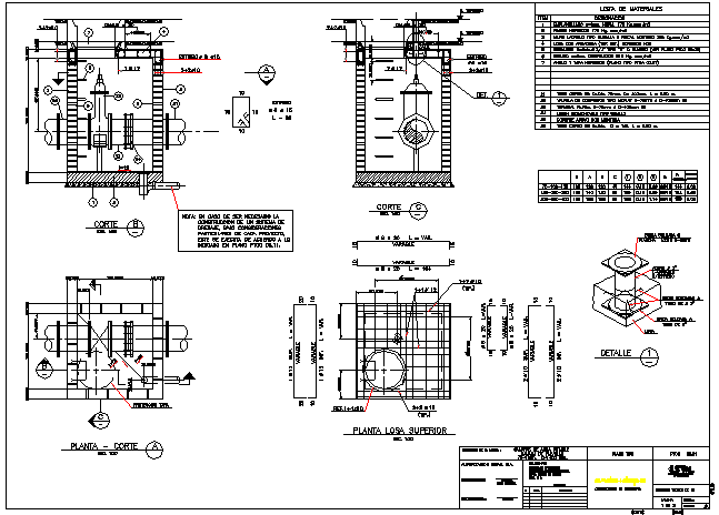
Inspection chambers drinking water constructive details dwg file.
Inspection chambers drinking water constructive details that includes a detailed view of floor construction with concrete plan, wall construction, column construction, slab and pillars construction, measures, cuts, joints and much more of chamber construction details.
Uploaded by:

