Construction of curbs and channeling storm water dwg file
Description
Construction of curbs and channeling storm water dwg file.
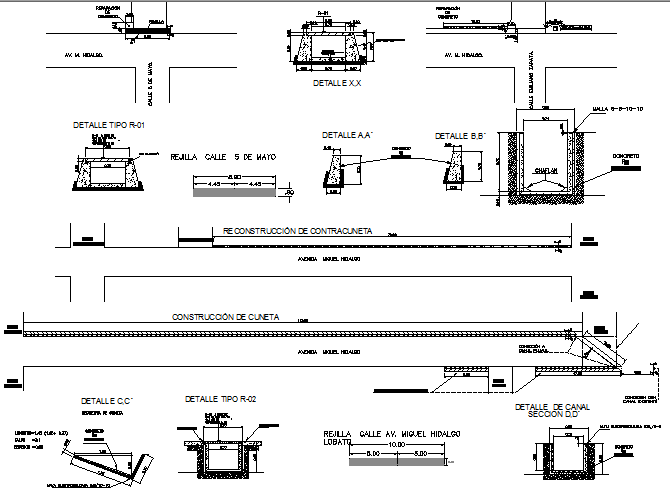
Construction of curbs and channeling storm water that includes a detailed view of canal section details, connection canal existence, avenue module reconstruction and much more of construction details.
Uploaded by:
