Fire protection oil tank system specifications details dwg file
Description
Fire protection oil tank system specifications details dwg file.
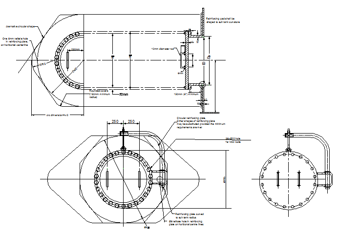
Fire protection tank system specifications details view of Reinforcing plate curved to suit tank radius, telltale hole in reinforcing plate on horizontal center line, shell manhole and much more of tank details.
Uploaded by:

