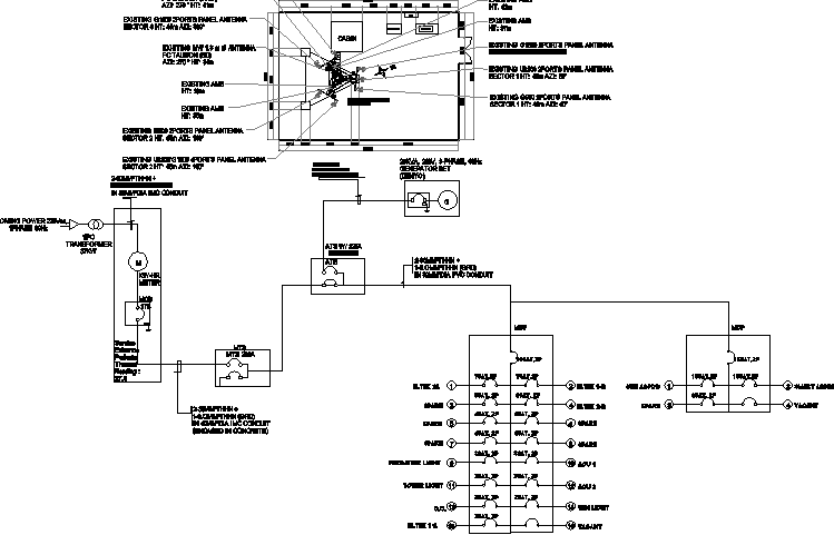
Cabin, leg electric installation details of telephonic tower dwg file
Description
Cabin, leg electric installation details of telephonic tower dwg file.
Cabin, leg electric installation details of telephonic tower that includes a detailed view of that includes a detailed view of leg 1, leg 2, leg 3, sst box, existing spares, fuel tank, gen-set base pad, existing two port panel antenna, existing three port panel antenna, cabin, sector, measures, ports and much more of tower installation details.
Uploaded by:

