Constructive water tank details of residential housing building dwg file
Description
Constructive water tank details of residential housing building dwg file.
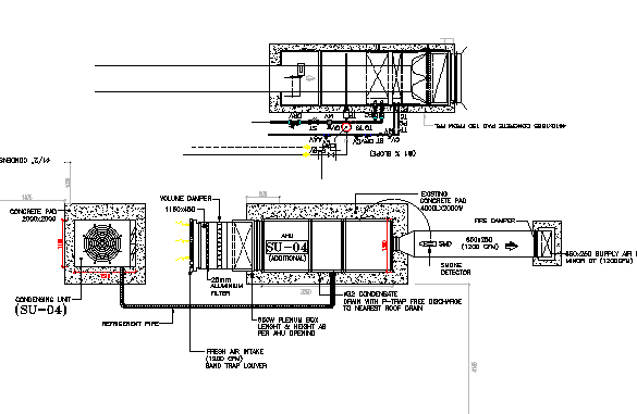
Constructive details of residential housing building that includes a detailed view of plenum box, fresh air intake, smoke detector, refrigerant pipe, aluminium filter, concrete pad, volume damper, concrete pad, fire damper and much more of water tank construction details.
Uploaded by:

