LOGIN
HOME
CATEGORIES
UPLOAD FILE
PRICING
HOUSE PLAN
ABOUT US
CONTACT US
Beam reinforcement detail dwg file
Home
Categories
Details
Construction Details
Beam reinforcement detail dwg file
Uploaded by:
Dhara
View Profile
View Profile
Description
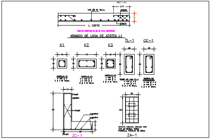
Beam reinforcement detail dwg file, Beam reinforcement detail with plan and section detail, reinforcement 8mm to 18mm detail, elevation detail in square shape detail, etc.
File Type:
DWG
File Size:
1.5 MB
Category::
Details
Sub Category::
Construction Details
type:
Gold
Uploaded by:
Dhara
View Profile
Download
Add to libary
find Latest
Related
Files