corporate office
Description
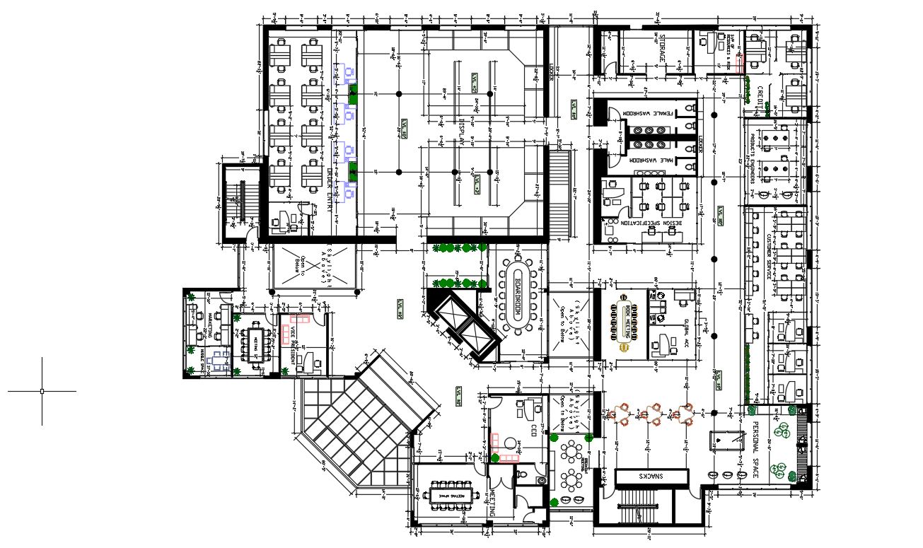
corporate office architecture layout plan details dwg file. corporate office architecture layout plan details that includes a detailed view of main entry gate, reception area, waiting area, sitting area, general hall, passage, meeting room, conference room, meeting room, cafeteria and much more of layout plan details.

Uploaded by:
Piklu
Roy

