Sports ground landscaping details dwg file
Description
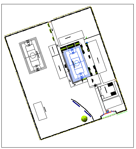
Sports ground landscaping details dwg file .
Sports ground landscaping details that includes a detailed view of tree view, landscaping view, play area, ground pitch, grass area, dressing room, toilet for staff and general, main entry gate, car parking and much more of sports ground details.
Uploaded by:
