Small house AutoCAD DWG plan with detailed ground floor layout
Description
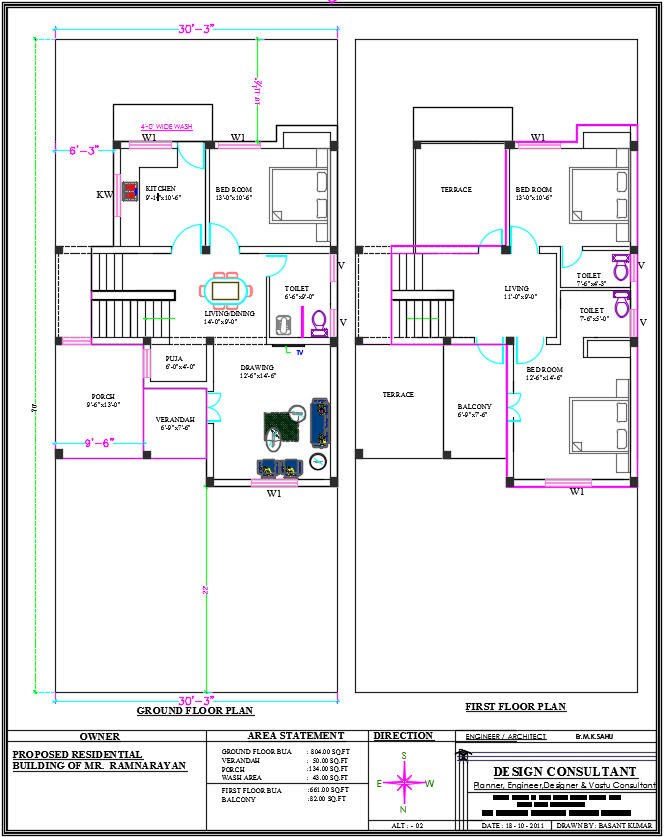
This small house AutoCAD DWG file presents a detailed ground floor plan designed specifically for middle-class families. The drawing includes clear architectural dimensions, functional room layouts, entry points, and service areas arranged for efficient use of space. It provides a modern and practical residential design ideal for compact plots while maintaining comfort and functionality.
The DWG plan highlights a balanced arrangement of living space, bedrooms, kitchen, and common areas for a small-scale home. Suitable for architects, engineers, and interior designers, this file can be used as a reference for residential layout projects, concept visualization, or working drawings. The design ensures convenience, proper circulation, and efficient use of available area. Created with precision, this AutoCAD drawing is easy to modify and adaptable to various housing requirements. Perfect for students, professionals, and builders, this DWG file helps visualize affordable housing with modern architectural standards and spatial efficiency.

Uploaded by:
ghanshyam
yadav
