Single family house architecture project details dwg file
Description
Single family house architecture project details dwg file.
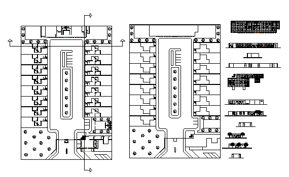
Single family house architecture project details that includes a detailed view of foundation plan details of column and beam, footing foundation plan, elevation, back elevation, sectional view, doors and windows view, flooring view, staircase view and much more of housing project details.
Uploaded by:

