Fire alarm system electrical installation with fire alarm block diagram for office dwg file
Description
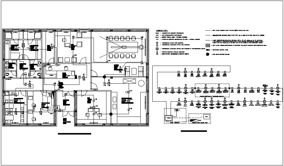
Fire alarm system electrical installation with fire alarm block diagram for office dwg file
in fire alarm electrical installation with fire alarm view its line diagram and office area view with switch board and control panel view and its legend.
Uploaded by:

