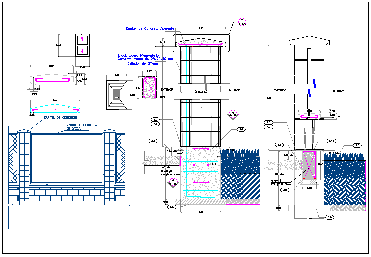
Constructive details of that dividing grill with fence details dwg file
Description
Constructive details of that dividing grill with fence details dwg file.
Constructive details of that dividing grill with fence details that includes a detailed view of that includes a detailed view of metal fence design, footings details, gate elevation with design, brick wall design, measures, cuts, joints and much more of fence details of garden.
Uploaded by:

