Radio electric tower cabin and floor details dwg file
Description
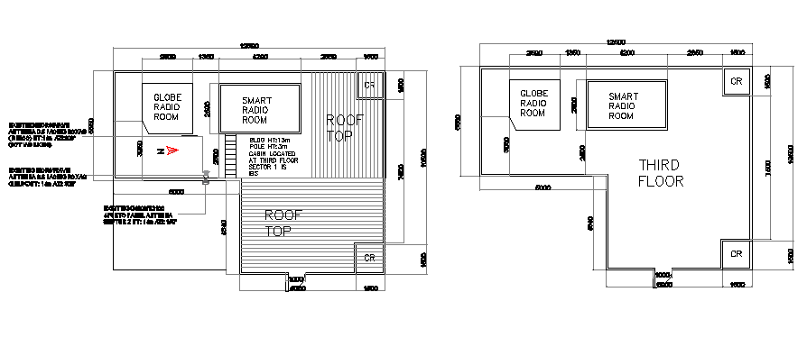
Radio electric tower cabin and floor details dwg file.
Radio electric tower cabin and floor details that includes a detailed view of third floor, smart radio room, globe radio room, roof top, pole, cabin located at third floor, existing microwave antenna, panel antenna, measures and much more of tower installation details.
File Type:
DWG
File Size:
808 KB
Category::
Electrical
Sub Category::
Architecture Electrical Plans
type:
Gold
Uploaded by:

